据温哥华港湾综合报道:大温素里市议会正在推进一项有争议的计划,在南素里建造新的Costco,但同时表示不会在该地区建造社会性住房。
在11月17日的例行市议会会议上,众多居民到场就这两个问题明确表达了他们的意见。虽然关于Costco的提案举行了公开听证会,但关于综合住宅区的提案却没有。但这并没有阻止许多反对者和一些支持者挤满议会大厅。


市长布伦达·洛克(Brenda Locke)表示同意反对者的意见,她对B.C. Housing提交的申请也表示担忧,该申请计划建设260个住房单元,包括200个可负担租赁单位、40个支持性住房单元和20个综合护理单元。

“我个人不支持它,但最终将由议会决定,我怀疑他们也不会支持,”洛克说,随即赢得现场热烈掌声。
她还表示,她和议会只支持为“老年人、在职家庭以及目前在市场和我们城市中挣扎的固定收入人群”提供的可负担住房单元。

洛克表示,其他住房单元将为无家可归者提供全方位支持,应该建在不同的地点,并指责卑诗省政府提议在该地区建设这些住房单元。
素里市已有多个支持性住房点,但南素里没有。多数议员表示,该提案的问题在于将可负担单元与支持性及复杂护理住房混合建设,并且选址靠近住宅区。但议员哈里·贝恩斯(Harry Bains)表示,过去市议会批准保障性住房是错误的,因为这些住房可能允许吸毒行为。

虽然许多现场居民对议会不支持B.C. Housing的申请表示赞赏,但仍有一小部分20人感到失望。
“我为生活在街头的人们感到非常难过,”当地居民、南素里极端天气收容所志愿者邦妮·吉利斯(Bonnie Gillies)说。
“很多人都只关注自己的最大利益,而我们这个小团队并非如此。我们关注的是社区中无家可归者的需求。”
与吉利斯一起工作的凯西·布斯(Kathy Booth)也出席了议会会议,她对批准低于市场价的租赁单位感到高兴,但对市议会取消支持性住房计划表示失望。
“在2013年的素里无家可归者计划中,本来计划在素里所有地区建设支持性住房,我们一直在提醒议会这件事,”布斯说。
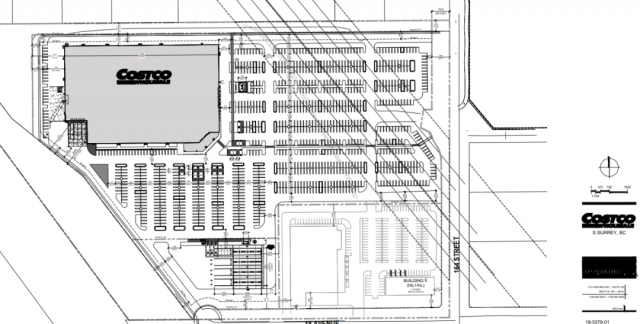
距离该拟建地点不远的另一项议案也是议会讨论的焦点——在Grandview Heights社区建设新Costco的计划。

该提案从一开始就遭到当地居民抵制,并发起了反对该选址的请愿。
许多出席会议的居民提出了环境保护、交通控制等方面的担忧,也有人支持,认为新Costco能为社区提供更多就业机会。

拟建于164街的新Costco仓储面积为165,000平方英尺,还包括一个加油站和989个停车位。经过听证会后,素里市议会对该提案给予最终批准。

该地点将进行重新划分,素里市官方社区规划也将随之更改,同时需进行部分道路建设以缓解交通压力,以适应该开发项目。
来源:温哥华港湾综合
加国观察-01simple.com 加拿大新闻,温哥华新闻,多伦多新闻,蒙特利尔新闻,加国新闻,加国热点,加拿大热点
